• Home
  • Intérieur
  • Éphémère
  • Réhabilitation/Construction
  • Presse
  • Studio
  • Instagram
  • Contact
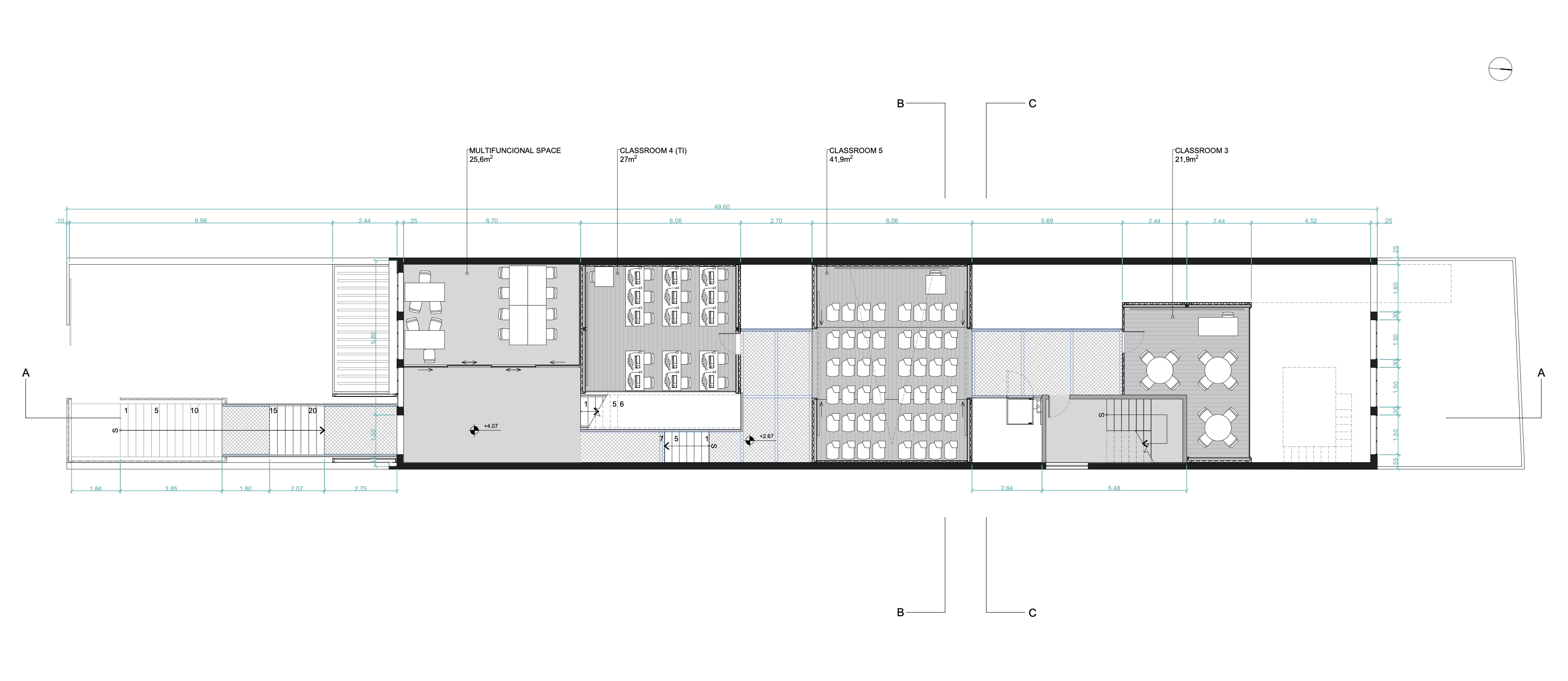
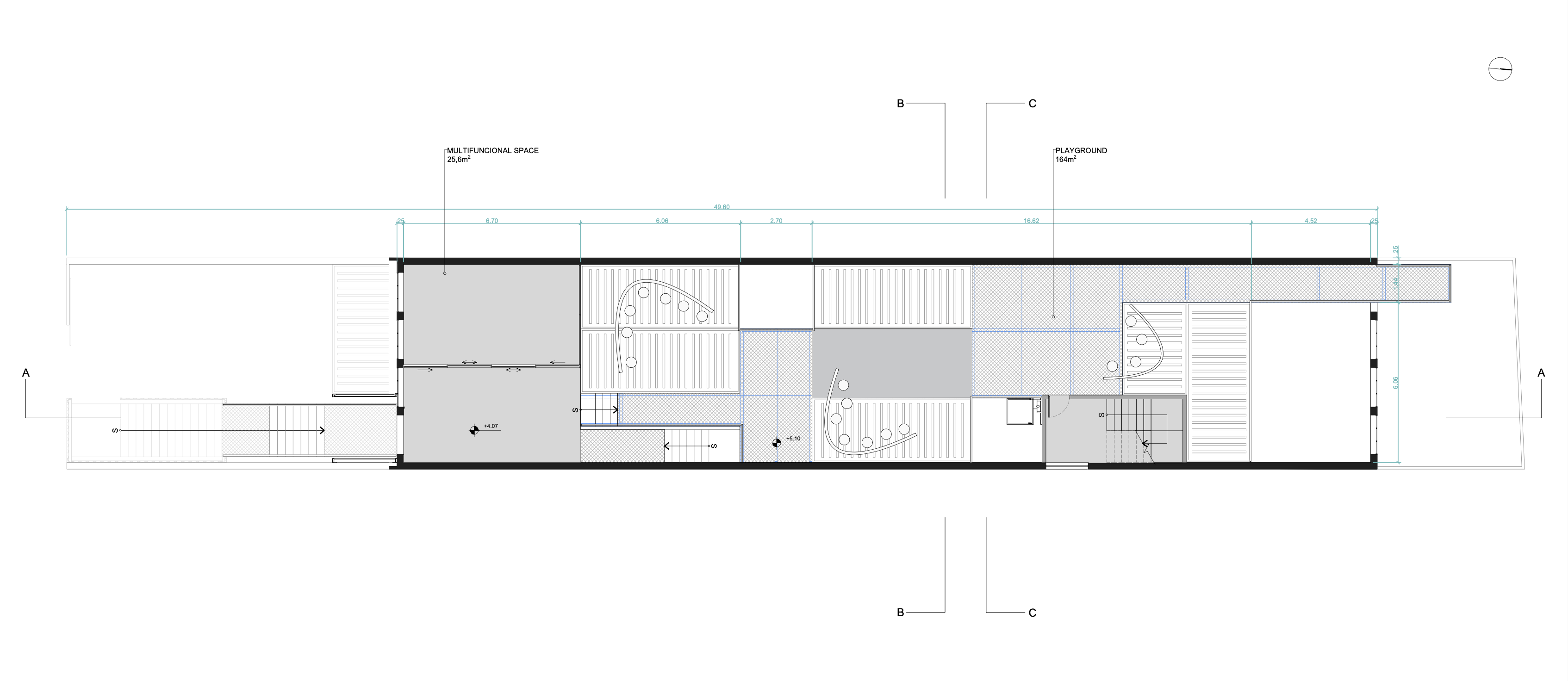
Ritma - Rio de Janeiro, Maré
Rua Arquitetos
Maître d’ouvrage : Ireso
Programme : Réhabilitation d’un hangar en centre de formation en technologies de l’information, centre culturel et cinéma
Missions : ESQ, APS
Surface totale de plancher : 790 m²
Surface totale terrain : 539 m²
Budget : 191 000 € HT
Images : ©Rua Arquitetos
RITMA signifie « Réseau d’Innovations et de Technologies de la MAré ». Le centre de formation en technologies de l’information dédié à l’éducation et à la culture dans la favela de la Maré a pour but d’initier les enfants et les jeunes aux technologies de l’information dans un quartier déficitaire en équipements collectifs. Dans un bâtiment au volume important, il est essentiel de retravailler les échelles, trouver des surfaces de plancher, proposer de nouvelles circulations afin de proportionner des espaces appropriés aux nouvelles fonctions, telles que des salles de cours, de réunion ou encore la billetterie et le cinéma… Dans un souci de rationalisation de la mise en œuvre, on a choisi d’utiliser des containers maritimes, objets superposables facilement récupérables dans la ville de Rio de Janeiro.